STREAMSIDE VILLAGE
Streamside is a brand new neighborhood located in Essex VT. Convenient to shopping, schools, and much more, Streamside is a unique opportunity to live in an excellent location with a country feeling yet close to everything! 31 Quality built homes constructed by Award Winning Contractor. We take pride in our homes and Streamside is no exception. Contact us today for more details.
Check out our progress!
We still have 14 Carriage Home Style Lots available! Contact us today to learn more about Streamside Village.
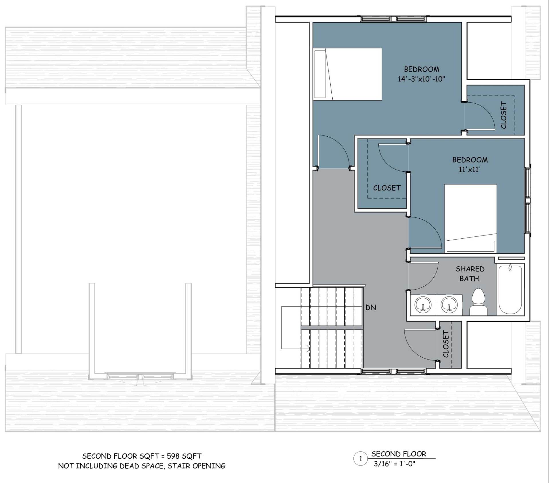
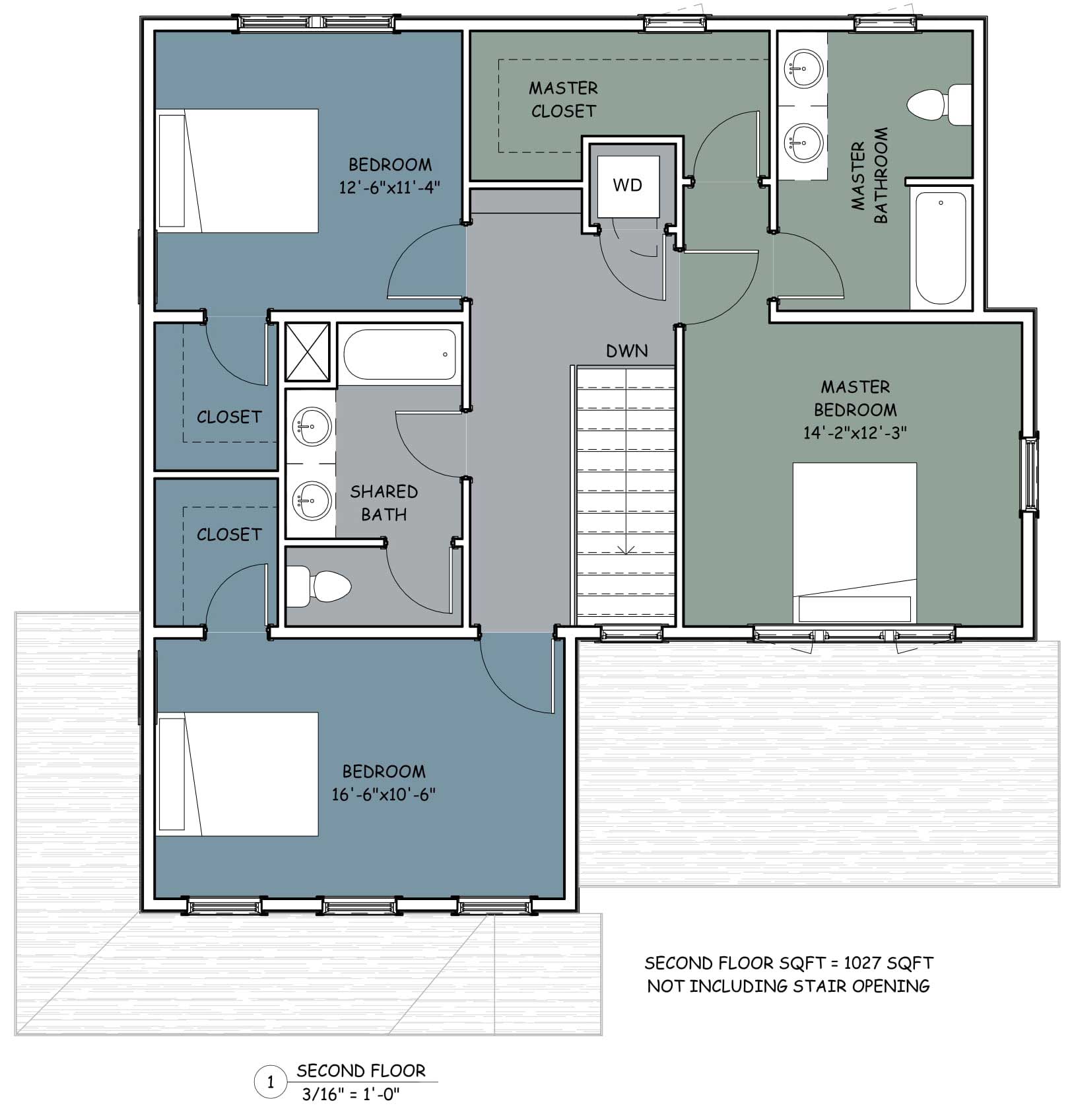
SINGLE FAMILY HOMES








